

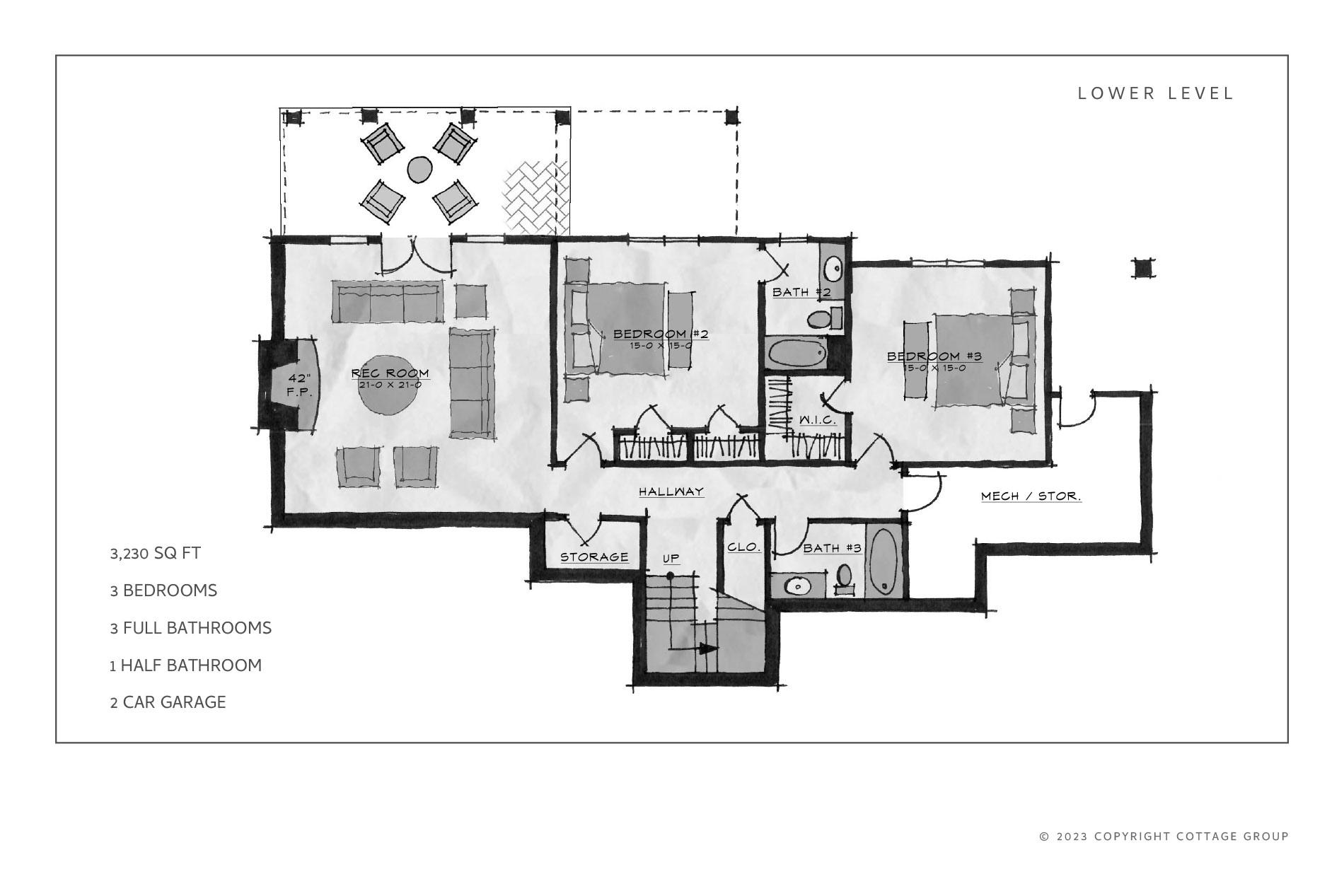
A two level, 3 bedroom, 3 full/1 half bathroom home with ample square footage, great room with French doors to a large screened porch, kitchen space & formal dining area, 2 car garage, lower level rec room, private sleeping porch off of primary bedroom & more.
- 3,230 Sq Ft
- 3 Bedrooms
- 3 Full Bathrooms
- 1 Half Bathroom
- Rec Room
- 2 Car Garage



